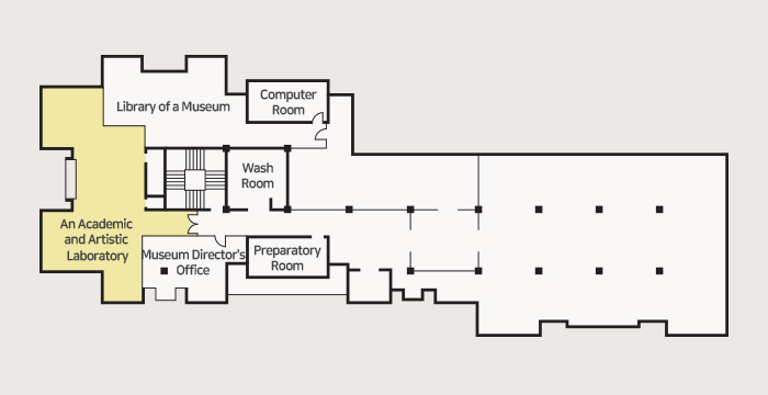
Facilities

Introducing Hanyang University Museum.

박물관장실 준비실 전산실 박물관도서실 학예연구실
1F - Hanyang University Museum - Museum Director's Office & Curriculum Research Office
  • Museum Director's Office
  • Preparatory Room
  • Computer Room
  • An Academic and Artistic Laboratory
  • Library of a Museum

This is a space where museum exhibitions and related tasks such as relics, education, and seminar rooms are performed. The museum library is operated in a closed-door manner through a separate application.